We are working on the design of a modern, high-quality detached house in Islington.
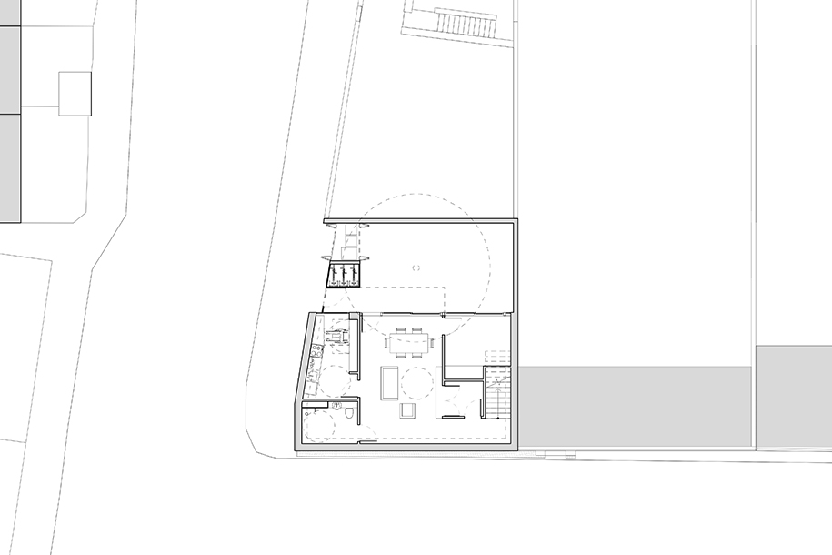
The project investigates the replacement of existing derelict garages with the construction of a new two-story 3 bedroom residential property and aims to provide a high quality contextual design that blends in with the character of the surrounding area whilst providing something more fitting with a contemporary way of life.
The new design proposal draws inspiration from the surrounding architecture and features of the surrounding area. It respects the existing character of the site by keeping the language of a low rise brick wall along Panmure Close and Jack Walker Crescent.
The upper floor is designed as one volume set back from the brick walls. This volume accommodates the bedroom area. The set back strategy aims to emphasise the visual importance of the lower level brick wall and makes the first floor addition visually modest.








